Online inquiry
HOME > Products
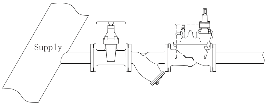
F500 UPSTREAM PRESSURE SUSTAINING/RELIEF Price:¥

• Pressure sustaining: maintains a minimum pressure setpoint to sustain a full pipe.
• Pressure relief: transfers excess pressure from an upstream network to a lower pressure downstream network, reservoir or outfall when upstream pressure exceeds the set value.

Online inquiry
Detailed content Specification parameter Product packaging

Functions: 

• Pressure sustaining: maintains a minimum pressure setpoint to sustain a full pipe. 

• Pressure relief: transfers excess pressure from an upstream network to a lower pressure downstream network, reservoir or outfall when upstream pressure exceeds the set value. 


Sample applications: 

• Maintaining a pressure setpoint (in-line mounting on pipe) in order to: 

- Ensure minimum pressure at a high point or to a disadvantaged service connection. 

- Avoid an excessive pressure drop when supplying a reservoir and spread reservoir filling over time. 

- Maintain a minimum pressure on a pump and therefore limit flow to prevent it from working in the cavitation zone. 

• When a pressure setpoint is reached, relieving pressure to an outlet (parallel mounting) in order to: 

- Prevent overpressure in a network when a shutoff component is closed. 

- Provide a minimum flow at a pump outlet to protect it from operating at too low flow (depending on the pump curve).


image.png

Technician corner:

• Even if it is a pressure relief valve, we recommend to install a strainer at the inlet of ACV to avoid any damages due to a piece of wood or a stone inside the control valve. 

• An isolating valve installed at the inlet offers the possibility to ensure easily the maintenance if needed on the strainer.